随着当代社会高节奏的发展模式,“共享式生活”大张旗鼓进入到每个现代人的生活圈,共享单车、共享汽车、共享雨伞、共享充电、共享办公........“共享式生活”给现代人带来了便利、快捷、时尚、开放的生活体验。
HHD本至办公以共享生活为时代背景的同时,利用大数据信息分析现有市场概况,精准定位其目标客户群,拟定“互联·共享·智慧·开放·包容”为设计理念,鼎力将新浩e都打造为深圳最具影响力的联合办公社区和全球共享工作空间,以休闲、交流、联动带动创业团队实现资源整合,将共享价值最大化。
HHD本至办公在创作上以“生命绿”为设计主要元素,打造办公生活公园为设计要点,将项目形象融入到环境,形成完整环境VI系统为目的,全力打造新浩e都众创空间。
随处可见的绿植在光影交错的灯光映射下,让空间整体不管从视觉还是体验感上都有一种生命的气息:入驻企业的“活力”、对未来期待的“健康”、对空间分享的“快乐”、对资源财富的“共享”......而接待区巧妙的使用柔和的软装家私、木制桌椅及地板的点缀又让这个科技感十足的空间流露出中华美学刚与柔的文化底蕴。
◆简洁·大气·模块化·商务◆
在新浩e都会议室的设计概念里,HHD本至办公始终认为会议室是一个商务、严谨、谈判、决策产生的代名词,在设计上不仅空间部采用灰黑白三种冷色系来塑造空间的严肃感,会议长桌及座椅也大量使用灰黑色风格,线条刚硬,给人肃然起敬的空间体验感,宛如从进来那一刻一场严谨商业谈判已经悄然拉开了序幕。
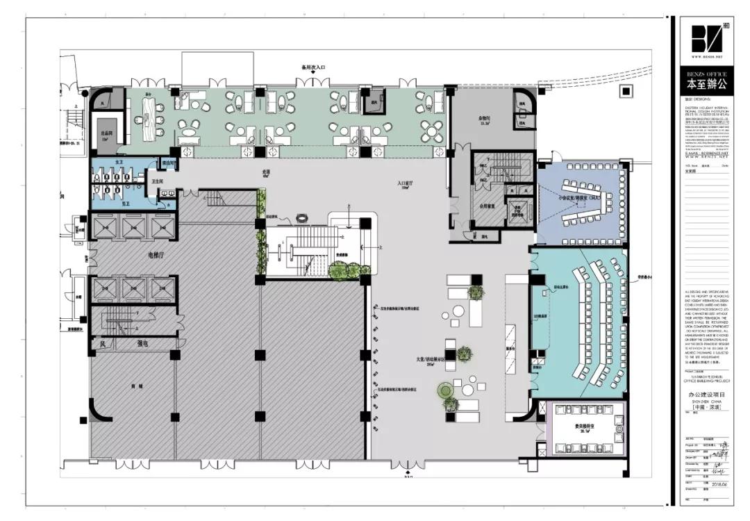
新浩e都一楼平面效果图
◆智能·协作·时尚·创意◆
在二楼共享办公区域,HHD本至办公不仅在天花采用大量绿植填充,软装方面也大胆的使用黄、绿色系办公桌椅。从装饰到使用都贯彻着健康生态的绿色理念,采用线条式摆放办公桌椅,天花局部使用一些线条的变化,让整体环境刚柔并济,灵巧的将室内空间在视觉上融为一体。
当你踏进这个充满活力、创意写作的空间那一刻就能清晰感受到生命力扑面而来,充分体现共享办公的创意精神、活力和开放性以及共享资源的联合性;而将协作、创意的概念融入到空间设计中去也是HHD本至办公为新浩e都进行设计时考虑的必要因素


◆灵动·多变·开放·创新◆
不同于正规办公桌式办公,休闲式办公也是空间内的亮点之一,HHD本至办公在设计时进行个性文化原创设计,创造出独一无二的艺术价值型空间。
空间在加入了共用咖啡餐桌、圆桌式休闲座椅、长条沙发等多种主题元素的同时,通过不规则摆放赋予了空间的多变性,增加了不同空间体验感,也体现了当代办公人员的动态性、创新性、开放性思维。让办公空间不仅仅是个办公场地,也是个互动、学习与活动的空间,为共享办公的理念又增添了一层宝贵的社交与知识价值。
艺术式的天花设计为室内空间营造了现代科技感的视觉,吊顶及室内绿植也使空间及外表流露出生生不息的气息,展现出自然与城市结合的空间触感,景观结构体块和艺术天花的灵动跳跃,让整体空间不仅洋溢着现代科技感也充满着健康发展的活力。
新浩e都项目的完美实施,也正是体现了HHD本至办公一直为投资方监督质量和控制造价的设计初衷,只有真正的站在客户的角度去发现问题、思考问题、解决问题才能够和客户实现共赢。HHD本至办公也会一直将这些优点认真贯彻下去,让每一位客户得到不一样的专属办公空间体验。
项目名称:新浩科创e站丨一站式赋能生态众创空间
甲方信息:新浩e都
项目地点:广东·深圳
项目面积:5000m²
共享办公丨体验不一样的主题办公体验
共享式办公 不仅有共享资源
政府政策优惠也有惊喜










